NUEVA PLANTA
ALCALÁ DE HENARES
C/ Pío Baroja 24. Alcalá de Henares.
Obispado de Alcalá de Henares.
Pr. 2014. Ej. 2015-2016.
P.E.M. 1.649.498,96 €.
Sup. Const. 1.353,30 m2.
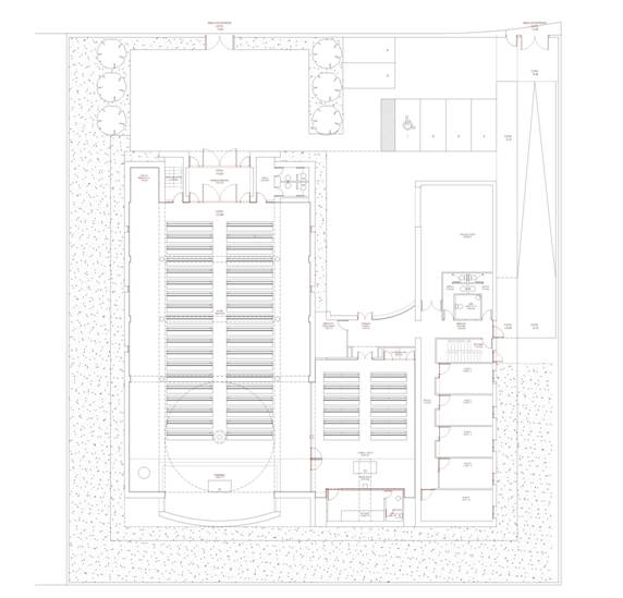
La construcción de una nueva iglesia tiene dos dimensiones relacionadas pero claramente diferenciadas. Por un lado, la significativa, en cuanto lugar de la celebración sacramental y de reunión de la comunidad, y que por tanto debe mostrar ese carácter trascendente y debe ser capaz de comunicar su carácter sacro a los fieles. Por otro lado, la funcional en cuanto edificio construido para una liturgia y para una vida parroquial con unas características determinadas, desde lo más sencillo a lo más complejo.
Para la organización espacial y funcional del templo se ha tenido en cuenta, además de la normativa sobre construcción vigente (en particular la referente a condiciones de protección contra incendios y a accesibilidad para personas con movilidad reducida) los documentos sobre Sagrada Liturgia redactados a partir del Concilio Vaticano II. En particular, y por ser las normas que rigen con carácter básico la ordenación de la Liturgia, la Constitución “Sacrosanctum Concilium”, y la Ordenación General del Misal Romano.
La configuración del proyecto presentado parte de la búsqueda de aquello que de invariante pudiera tener la arquitectura religiosa a través de las épocas, desde las primeras basílicas hasta los últimos ejemplos. La Diócesis de Alcalá ha pretendido con este proyecto anclar la forma del templo en su tradición histórica, de tal modo que desde esta tradición se proyecta en el momento actual. Esto es particularmente importante en un entorno urbano que carece de elementos de referencia con los cuales se puedan identificar los habitantes.
OTROS PROYECTOS Y OBRAS












