RESTAURACIÓN
MONASTERIO CISTERCIENSE DE SAN BERNARDO
ALCALÁ DE HENARES
Plaza de las Bernardas, s/n
Declarado Bien de Interés Cultural (R.I.) - 51 - 0000261 - 00000
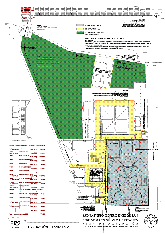
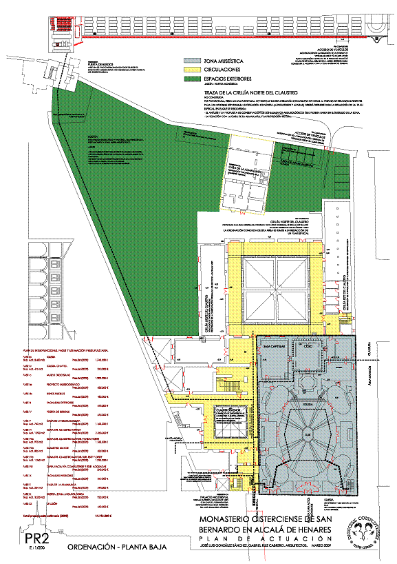
PLAN DIRECTOR. MONASTERIO CISTERCIENSE DE SAN BERNARDO. Alcalá de Henares. Obispado de Alcalá de Henares. Pr. 2005-2009. (50% en colaboración con Gabriel Ruiz Cabrero, arquitecto). Sup. de Intervención 10.687,55 m2.
Restauración del Ala Este del Claustro Mayor. Monasterio Cisterciense de San Bernardo. Alcalá de Henares. Instituto del Patrimonio Cultural de España. Ministerio de Cultura y Deporte. Pr. 2018. Ej. 2022-2023.
Restauración del Área del Claustro Mayor. Monasterio Cisterciense de San Bernardo. Alcalá de Henares. Diócesis de Alcalá de Henares. Ministerio de Fomento (Programa 1,5 % Cultural). Dirección General de Patrimonio Cultural de la Comunidad de Madrid. Pr. 2019. Ej. 2020-2021. P.E.M. 1.167.700 €. Sup. Const. 2.440,05 m2.
Restauración del Ala Oeste del Claustro Mayor. Monasterio Cisterciense de San Bernardo. Alcalá de Henares. Ministerio de Fomento. Pr. 2014. Ej. 2017-18. P.E.M. 658.196,83 €. Sup. Const. 1.438,00 m2.
Restauración de la Iglesia. Monasterio Cisterciense de San Bernardo. Alcalá de Henares. Obispado de Alcalá de Henares. Financiación 1,5% Cultural – Ministerio de Fomento y D.G.P.C. de la Comunidad de Madrid. Pr. 2015. Ej. 2016-2017. P.E.M. 1.198.450,00 €.
Restauración del Área del Claustro Menor. Monasterio Cisterciense de San Bernardo. Alcalá de Henares. Obispado de Alcalá de Henares. Financiación 1% Cultural – Ministerio de Fomento y D.G.P.H. de la Comunidad de Madrid. Pr. 2011. Ej. 2012-2013. P.E.M. 609.803,93 €.
Restauración del Chapitel y las Cubiertas de la Iglesia. Monasterio Cisterciense de San Bernardo. Alcalá de Henares. Ministerio de Cultura – Instituto de Patrimonio Cultural de España. Pr. 2009. Ej. 2011-2012. P.E.M. 186.423,52 €.
Restauración de la Casa de la Demandadera. Monasterio Cisterciense de San Bernardo. Alcalá de Henares. Obispado de Alcalá de Henares. Financiación 1% Cultural – Ministerio de Fomento y D.G.P.H. de la Comunidad de Madrid. Pr. 2010. Ej. 2011. P.E.M. 609.803,93 €.
Emergencia de restauración de cubiertas en el Monasterio Cisterciense de San Bernardo. Alcalá de Henares. Ministerio de Fomento. Pr. 2002. Ej. 2003. Pres. declarado de emergencia 1.262.189 €.. Pres. contratado 546.500,13 € (50% en colaboración con Gabriel Ruiz Cabrero, arquitecto). Sup. Act. 3.170 m2.
El Monasterio de San Bernardo fue fundado por decisión personal del Cardenal Sandoval y Rojas, Arzobispo de Toledo, al lado del Palacio que los Arzobispos de Toledo mantenían en la ciudad complutense. Se construye según trazas de Juan Gómez de Mora y se finaliza, tras la muerte del fundador, de acuerdo con el proyecto inicial. Su importancia en la historia de la arquitectura española es evidente: se trata de uno de los más importantes conjuntos barrocos de la primera mitad del s. XVII.
La historia más reciente del edificio se puede iniciar con el incendio de la cúpula de la Iglesia, consecuencia del que se produce en el adyacente Palacio Arzobispal y lo destruye. Esta pérdida motiva los sucesivos proyectos de restauración, que recuperan la traza de la cúpula y posteriormente, por Manuel Barbero Rebolledo, la linterna. Obras posteriores son la que recuperan las cubiertas del coro y del resto del Convento.
El convento se localiza en un entorno urbano complejo. Forma parte del recinto amurallado, en conjunto con el Palacio de los Arzobispos de Toledo, con el cual está íntimamente relacionado funcional e históricamente. Se relaciona también con el núcleo de la Alcalá Cristiana, localizado en torno a la Catedral Magistral. Su acceso, a través de una plaza que queda definida por el Palacio, el Convento de la Madre de Dios (actual Museo Arqueológico Regional) y el propio convento se configura como un espacio urbano de primer orden dentro del conjunto urbano de Alcalá de Henares, ciudad incluida en la lista del Patrimonio Mundial de la UNESCO.
OTROS PROYECTOS Y OBRAS
















